16, Templar Court

St John's Wood Road, St John's Wood, NW8 8QJ

A spacious two bedroom apartment with allocated underground parking, set within one of St John’s Wood’s most distinguished and recognisable portered buildings.

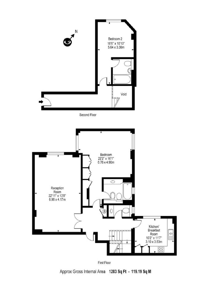
Arranged across the first and second floors and extending to 1,283 sq ft, you enter the apartment on the upper level, where the principal bedroom is positioned. This generous suite features fitted wardrobes and a well appointed en suite shower room.

The main living spaces are situated on the first floor, comprising a large reception room with twin windows, a separate kitchen/breakfast room with ample storage and integrated appliances, and a substantial second double bedroom with its own en suite and fitted storage. A guest WC is also accessed from the hallway.

Presented in good decorative order throughout, the apartment offers an excellent foundation for personalisation. Additional benefits include a reserved underground parking space, passenger lift and 24 hour porterage.

Floorplan View Brochure
Request Viewing
Overview

Guide Price : £1,250,000

Property Type: Apartment

SQ FT: 1,283

Bedrooms: 2

Bathrooms: 2

Receptions: 2

Location

More Listings